Eco-Quartier du Hameau
Modélisation 3d et animation 3d urbanisme Modélisation et animation 3d
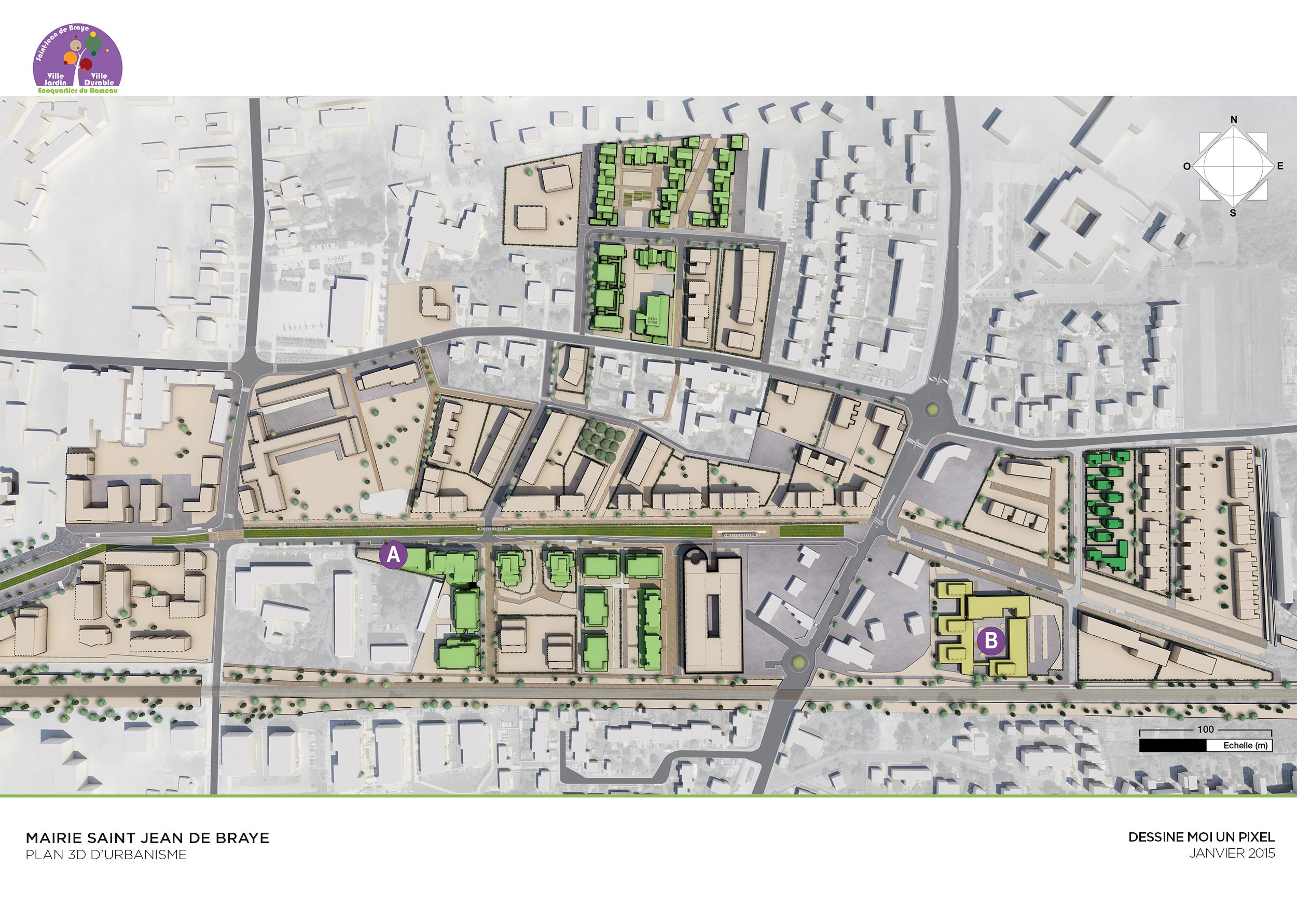
Modelisation 3d et animation 3d urbanisme du projet d’Eco-Quartier du Hameau à Saint-Jean-de-Braye.
Pour commencer, réception et traitement du plan de masse projeté en version vectorielle.
Modélisation 3d du terrain d’après relevé topographique, modélisation des bâtiments projetés et existants, mobilier urbain et axes de circulation et transports en commun.
Création des textures et matériaux 3d, illumination et application de l’arrière plan ciel sphérique, rendu très haute définition pour présentation publicitaire 4/3 mètres.



